RUSTIC TWO-STORY RETREAT — WYOMING
We developed a digital twin of a rustic two-storey log cabin in Wyoming. The goal was to build a reliable BIM model that could serve both as documentation and as a basis for future renovation, planning, etc
The model included the full timber architecture and structure, along with light MEP systems in the basement. And also full documentation of the project.







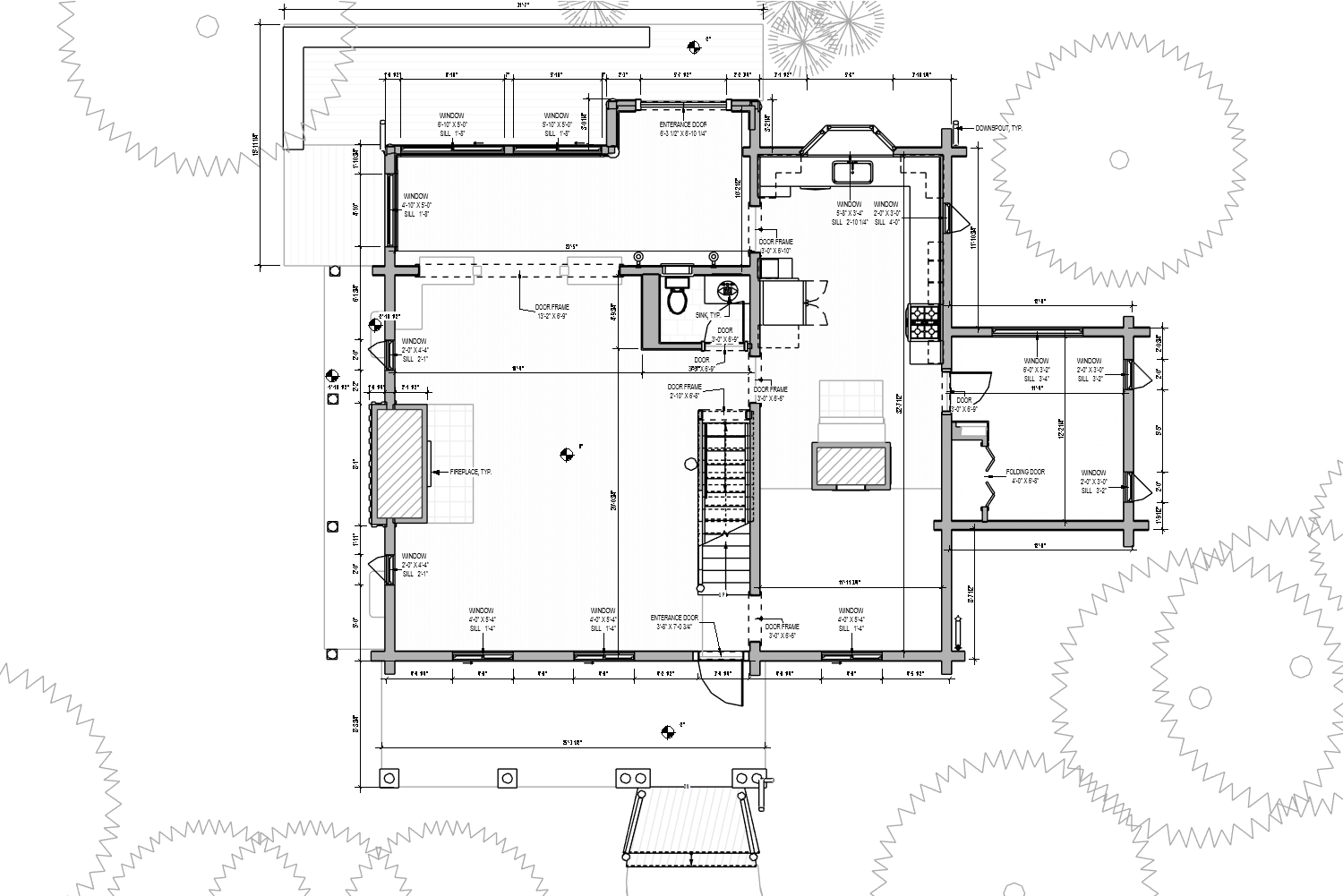
For the cabin, we set up custom wall types with sweeps built directly into them. This allowed us to represent the timber logs accurately and create variations of the walls, some with thicker sweeps, some thinner, to match the different log sizes used in the design.

We created the full set of drawings for the cabin, including floor plans, reflected ceiling plans, and elevations. This ensured the model could be used not only for visualization but also as a solid basis for documentation and coordination.







.webp)

.webp)







